2
В закладки
Пожаловаться
Продажа: 3‑комнатная квартира, строящийся дом, 80м², 1/9 этаж
7 750 000 ₽ 96 600 ₽ за м²
Вологда
Телефон: показать телефон
Агентство, 10.11.2025
В закладки
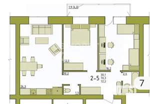
ПожаловатьсяПродаётся 3-комнатная квартира в строящемся доме (Дом 3), срок сдачи: IV-кв. 2026, общей площадью 80.3 кв.м., на 1 этаже. Новый жилой комплекс "Династия" от застройщика "ООО СТРОЙ-КОМПЛЕКС" расположен по адресу: Россия, Вологда, Молодёжная улица
Количество комнат
3
Общая площадь
80 м2
Этаж
1
Материал дома
кирпичный
Всего этажей в доме
9
Балкон
есть
Год постройки дома
нет данных
Ремонт
обычный
Вид жилья
строящийся дом
Санузел
раздельный
Площадь кухни
нет данных
Отопление
центральное
Расположение, инфраструктура рядом
Сравнение средних цен
3‑комнатные квартиры с похожей площадью ±10%
8 070 000 ₽
7 750 000 ₽
8 190 000 ₽
Средняя цена район
Это предложение
Средняя цена по городу
Это предложение
Средняя цена по городу
Похожие предложения рядом
3‑комнатные квартиры недалеко от Вологда
Рядом, с меньшей ценой
Недалеко от Вологда с ценой ниже
Закладки
Личный кабинет

Открыть панораму рядом с Вологда 























